
Передісторія.
У компанію OMELA пару років тому звернувся кліент, з запитом допомогти йому розробити, поставити та наладити пакувальну лінію у пакет «Дой-пак». Клієнт отримав грант від компанії USAID, та хоче запустити нове виробництво супів швидкого приготування у «дой-пак» пакеті. Продукт зазначив як суміш варених овочів та м’яса, але фасувати потрібно не готову суміш, а зазначену вагу кожного інгредіента. Продукт доволі складний для фасування, завдяки його властивостям – липкий, різна вага фракції, тощо. Але все ж таки OMELA вирішила взяти на себе таку відповідальність.
Виконана робота.
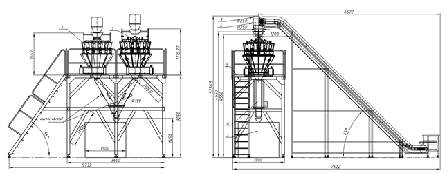
Ми розпочали проєктувати та розробляти дану пакувальну лінію разом з нашими партнерами та подальше узгодження її з клієнтом. Вирішили що буде два мультиголівкових дозатора (1 – вібро, 2 – шнековий), два великих завантажувальних транспортера, робоча платформа (для підтримки дозаторів та їх обслуговування) та під ними буде стояти роторний пакувальний автомат у пакет «дой-пак».
Для того щоб підлаштуватися під фінансовий розмір гранту, вирішили, що - дозатори та транспортери будуть виробництва наших китайських партнерів, а автомат буде виробництва наших партнерів з України. На основі цього у інженерів OMELA також було завдання зв’язати китайську та українську машини, щоб забезпечити безперебійний процес фасування.
У результаті отримали таку схему лінії:

Тобто, овочі будуть фасуватися на вібро мультиголівковому дозаторі, а м'ясо на шнековому мультиголівковому дозаторі. Дозатори одночасно будуть скидувати дози в одну загальну суміш, в той момент пакувальний автомат буде розкривати та запаювати пакет.
Почався процесс виробництва лінії, на цьому єтапі клієнт неодноразово вносив правки у конструкцію, переміщення сходин, тощо. Звісно, всі його бажання ми взяли до уваги. Та змінювали конструкцію так, як йому було зручно, звісно щоб ці зміни в цілому на фасування не вплинули. Також, за проханням клієнта, OMELA взяла на себе завдання провести всі потрібні комунікації (повітря, живлення, тощо).
Коли лінія приїхала на територію клієнта, інженери OMELA приїхали її сбирати та підводити всі комунікації:






Відгуки від наших клієнтів:

 
											