Весовой дозатор для фасовки хорошосыпучих продуктов в мягкий мешок типа "Big-Bаg" 032.73
Производитель: Собственное производство
- Описание
- 
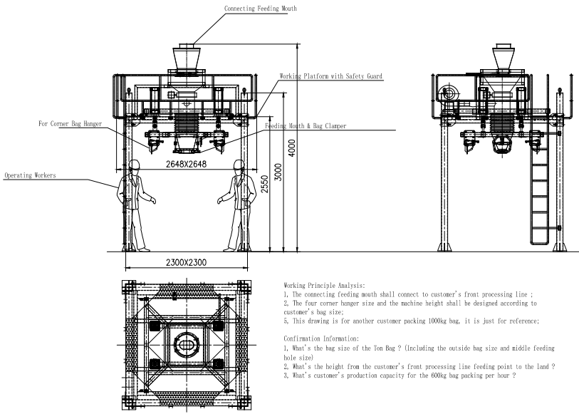
Весовой дозатор используется для расфасовки хорошосыпучих продуктов различного использования в мягкие мешки типа "Big-Bag". Работа дозатора основана на двухступенчатом принципе дозирования. При подвешивании мешка и нажатии кнопки "пуск" система автоматически обнуляет вес мешка и начинает засыпать продукцию. Сначала мешок заполняется быстро, но при достижении определенного процента веса, система переходит в режим медленной засыпки. Такое двухфазное наполнение мешка позволяет достигать высокой точности дозирования, сохраняя при этом и высокую производительность. Сам дозатор присоединяется к выходному патрубку бункера клиента. Бункер же дозатора оборудован датчиком уровня продукта и когда продукт достигает определенного уровня, соединительный туннель должен быть закрыт. Если фасуемый продукт находится ниже уровня, туннель должен быть открыт на определенный промежуток времени. По окончании заполнения мешка, зацепы опускают мешок вниз, и автоматический зажим освобождает мешок. Затем вилочный погрузчик должен извлечь заполненный мешок. Для достижения высокой точности взвешивания машина оборудована весовой платформой. Управление осуществляется с помощью двуязычного операционного интерфейса сенсорной панели, позволяющего полностью настроить все рабочие параметры. Программируемые таймеры осуществляют контроль за временем процесса. 
 
											 
						

